咨询热线 hotline
13397136633
首页
产品列表
变压器检测设备
断路器检测仪器
高压试验设备
继保二次回路试验设备
油化类检测设备
接地及绝缘电阻测试仪
避雷器及线缆测试设备
其他类测试设备及配件
新闻中心
设备选型
技术文章
技术文章
解决方案
案例展示
联系我们
关于我们
荣誉证书
技术文章
变压器检测仪器
断路器检测仪器
变压器综合测试系统
高压开关综合测试系统
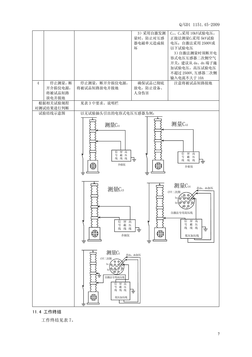
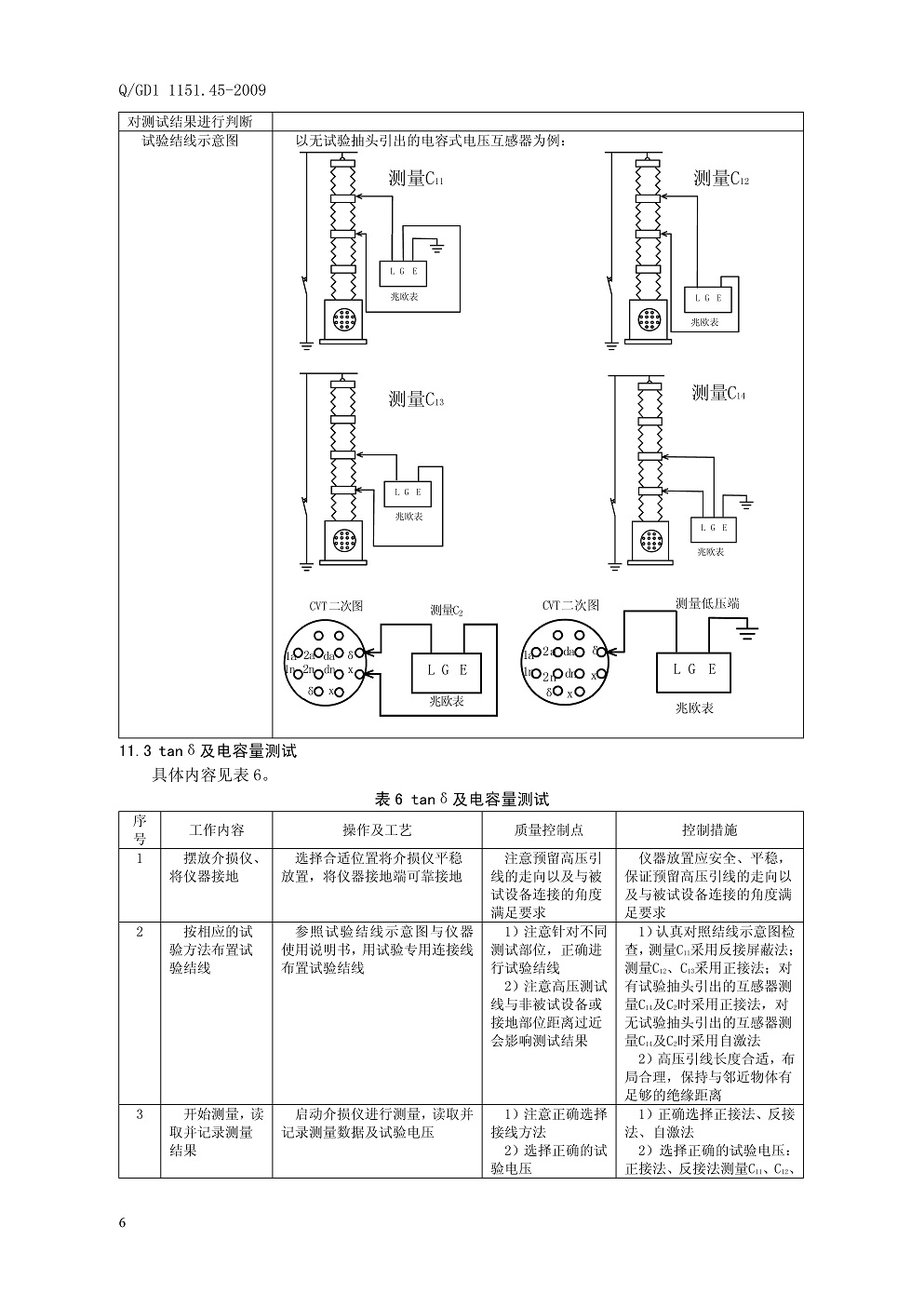
500kV电容式电压互感器预防性试验(电气部分)作业指导书
时间:2023-08-25
浏览次数:503次
上一篇:
500kVSF6断路器预防性试验(电气部分)作业指导书
下一篇:
什么是高压开关,其原理和作用是什么
Copyright © 2022 武汉华电高科电气设备有限公司 All Rights Reserved
鄂ICP备09002799号-4